Projektowanie instalacji ogrzewania podłogowego i ściennego
| Produkt | InstalSystem 5 |
| Typ artykułu | ZASTOSOWANIE PROJEKTOWE |
| Ostatnia aktualizacja | IS 5.0 Beta 30 |
Zakres lekcji
Artykuł prezentuje sposób projektowania ogrzewania płaszczyznowego w systemach pętlicowych (mokrych i suchych).
Przykład oparty na projekcie wykonanym dla jednorodzinnego budynku dwukondygnacyjnego, niepodpiwniczonego.
Potrzebne moduły i konfiguracja programów
Pakiet InstalSystem 5 zawierający moduł:
- Systemy płaszczyznowe.
Stan początkowy
Projekt zawiera komplet danych domyślnych skonfigurowanych w szablonie.
Układ pomieszczeń opracowano na podstawie podkładów w formacie DWG. Więcej szczegółów: Tabela przykładowego projektu.
Kroki do wykonania
Otwarcie nowego pliku projektu
- Uruchomić program InstalSystem 5.
- Otworzyć nowy projekt i wybrać preferowaną wersję pliku.
Więcej informacji na ten temat: Zarządzanie projektami i aplikacją - Wybrać odpowiedni szablon.
Więcej informacji na ten temat: Pliki szablonów
Definiowanie katalogów i danych ogólnych
Zadeklarować Dane ogólne w zakresie danych domyślnych:
- Zarządzanie kondygnacjami - dodać wymaganą liczbę kondygnacji
Więcej informacji na ten temat: Przygotowanie struktury budynku - Katalogi produktów - wybrać katalogi zgodnie z listą w Tabelce projektu w zakresie:
- Systemy płaszczyznowe
- Rury i kształtki
- Izolacje
- Zawory i armatura
- Instalacje cieplne - uzupełnić informacje dla:
- Instalacja rozprowadzająca
- Typy i dane domyślne
- Systemy płaszczyznowe
- Systemy podłogowe
- Systemy ścienne
- Rozdzielacze, ich osprzęt i automatyka
- Instalacja rozprowadzająca
Więcej informacji na ten temat: Użycie katalogów i danych katalogowych w projekcie
| Pliki projektu
|
Instalacja ogrzewania podłogowego i ściennego w budynku jednorodzinnym, isproj |
| Opracowano na | InstalSystem 5 Rev. Beta 30 |
| Niezbędne moduły | InstalSystem basis Heating system 5 Radiant loop systems 5 |
| Zakres projektu | Ogrzewanie płaszczyznowe |
| Użyte katalogi |
Podstawowe systemy płaszczyznowe |
| Rodzaj budynku | jednorodzinny niepodpiwniczony 2-kondygnacyjny |
| Konstrukcja budynku | Podkład parter, dwg Podkład piętro, dwg |
| Zakres rysunków | Rzuty |
| Opracowany przez | www.instalsoft.com |
| Zastrzeżenia prawne | Możliwość kopiowania całości lub fragmentów projektu |
| Wyniki obliczeń | Kompletny zakres wyników obliczeń, xls Kompletny zakres dostępnych wydruków, pdf Wyniki obliczeń dla ogrzewania płaszczyznowego, pdf Zestawienie materiałów, pdf Parametry montażu, pdf |
| Rysunki wynikowe | Parter, dwg Piętro, dwg Parter, pdf Piętro, pdf |
Przygotowanie konstrukcji budynku
- Zaimportować, przeskalować i usytuować względem siebie, wstawiając Punkt odniesienia, podkłady dla każdej z kondygnacji.
Więcej informacji na ten temat: Importowanie plików - Przerysować pomieszczenia na przeskalowanym podkładzie z wykorzystaniem trybu pracy AUTO.
Więcej informacji na ten temat: Wstawianie pomieszczeń - Ponumerować automatycznie pomieszczenia z wykorzystaniem funkcji Numeruj pomieszczenia. Rozpocząć numerowanie od pomieszczenia w lewym górnym rogu każdej kondygnacji.
- Skorygować odpowiednio w Tabela danych:
- Temperaturę projektową: dla łazienek wpisać 24°C, dla przedsionka 16°C.
- Maksymalną dopuszczalną temperaturę powierzchni posadzki poprzez wybór odpowiedniego typu pomieszczenia w sekcji Ogrzewanie.
- Dla nieogrzewanych pomieszczeń narzucić wartość wskaźnika strat ciepła równą "0".
Więcej informacji na ten temat: Przygotowanie struktury budynku
- Zweryfikować poprawność wprowadzonej konstrukcji w Widok 3D.
Więcej informacji na ten temat: Weryfikacja poprawności struktury budynku
Edycja instalacji - system płaszczyznowy
Strefa pow. grzewczych/chłodzących
- Wstawić elementy: Strefa pow. grzewczych/chłodzących do wybranych pomieszczeń.

1. Wstawienie Strefa pow. grzewczych/chłodzących - Wyciąć odpowiednie fragmenty elementów: Strefa pow. grzewczych/chłodzących i\lub zmienić ich kształt ze względu na przestrzeń zabudowaną (schody, wanny) w pomieszczeniach.
- Podzielić wybrane powierzchnie elementów: Strefa pow. grzewczych/chłodzących ze względu na wymagane dylatacje.
- Zadeklarować i skonfigurować Strefa brzegowa (SB).
Więcej informacji na ten temat: Strefy brzegowe Strefy powierzchni grzewczo-chłodzącej
Rozdzielacz
- Wstawić Rozdzielacz na każdą kondygnację. Rozdzielacz jest wstawiany na rysunku razem z szafką rozdzielacza.
Więcej informacji na ten temat: Rozdzielacz i jego akcesoria

Trasa przyłączy
- Połączyć elementy: Strefa pow. grzewczych/chłodzących z rozdzielaczami wykorzystując element Trasa przyłączy. Trasa przyłączy pozwoli na automatyczne wygenerowanie przyłączy.
Więcej informacji na ten temat: Trasa przyłączy i edycja przyłączy dla systemu płaszczyznowego

Edycja instalacji - zasilanie rozdzielaczy
Źródło
Pion
- Wstawić Pion, nadać mu symbol i określić zasięg (od kondygnacji 0 do kondygnacji 1).
Więcej informacji na ten temat: Łączenie kondygnacji z użyciem elementu "Pion"
5. Wstawienie elementu Pion
Rozprowadzenie
- Połączyć ze sobą elementy Źródło, Rozdzielacz, Pion rozrysowując sieć za pomocą elementów: Działka wykorzystując tryb pracy w programie: AUTO i ORTO.

6. Łączenie elementów instalacji
Armatura
- Wstawić elementy Zawór na działki.

7. Wstawienie Armatury - Wybrać w Tabela danych Typ zaworu.

8. Typ zaworu - Wykorzystać opcję: Kopiuj - Wklej do wstawienia armatury tego samego typu na inne działki.
Weryfikacja poprawności struktury instalacji
- Zweryfikować poprawność struktury instalacji korzystając z funkcji Sprawdź połączenia (Skrót: Shift + F2).
- Zweryfikować poprawność struktury instalacji i wykryć kolizje korzystając z Widok 3D.
Więcej informacji na ten temat: Weryfikacja poprawności struktury instalacji
Edycja danych elementów instalacji
Okładzina wierzchnia
- Zaznaczyć wybrane elementy Strefa pow. grzewczych/chłodzących i narzucić rodzaj Okładzina wierzchnia.

9. Okładzina wierzchnia
Strefa pow. grzewczych/chłodzących
- Zaznaczyć elementy Strefa pow. grzewczych/chłodzących, w których znaczny obszar zajmują przyłącza przechodzące i zmienić ich typ na Ogrzewana / chłodzona przyłączami. Należy wówczas pamiętać o usunięciu połączenia z rozdzielaczem.
- Zaznaczyć Strefa pow. grzewczych/chłodzących, na powierzchni których nie mają być układane pętle i zmienić ich typ na Bez rur.
10. Typ Strefa pow. grzewczych/chłodzących
Obliczenia i diagnostyka
Obliczenia systemów płaszczyznowych
- Wywołać obliczenia pełne za pomocą ikony kalkulatora
znajdującej się w sekcji Obliczenia na pasku narzędzi. - Otworzyć okno Diagnostyka wybierając je z listy okien lub za pomocą klawisza F8.
- Po zakończeniu obliczeń zweryfikować komunikaty zestawione w oknie Diagnostyka. Jeśli diagnostyka zgłasza komunikaty o randze błędu, należy je wyeliminować w pierwszej kolejności.
Więcej informacji na ten temat: Obliczenia i diagnostyka
Edycja instalacji - ręczne modyfikacje (opcjonalnie)
Korekta parametrów instalacji
- Skorygować temperaturę zasilania instalacji płaszczyznowej korzystając z obwodów regulacji znajdujących się w oknie Dane ogólne w sekcji Instalacje cieplne/Źródła.

11. Dane obwodów regulacji - Skorygować odstępy układania i wychłodzenia czynnika w poszczególnych pętlach.
Więcej informacji na ten temat: Interaktywne_obliczenia_systemów_płaszczyznowych
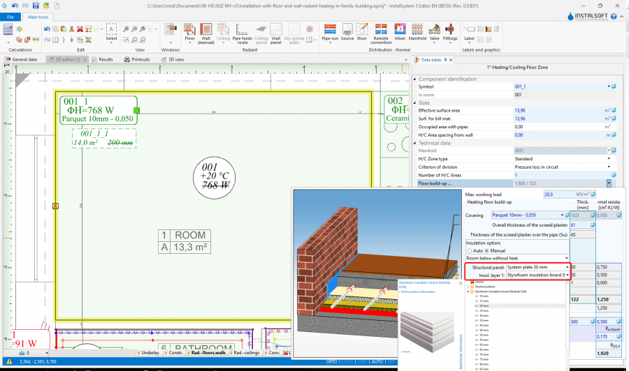
- Skorygować konstrukcję podłogi\ściany grzewczej.
14. Konstr. podłogi ... - Skorygować Max. strata ciśn. pętli.
15. Max. strata ciśn. pętli
Korekta przebiegu linii podziału elementu Strefa powierzchni grzewczych/chłodzących na elementy Powierzchnia grzewczo - chłodząca
Więcej informacji na ten temat: Korekta linii podziału po automatycznym podziale
Ręczna korekta przebiegu przyłączy wygenerowanych automatycznie
Więcej informacji na ten temat: Trasa przyłączy - ręczna korekta przebiegu przyłączy wygenerowanych automatycznie
Uzupełnianie rysunków o pętle instalacji płaszczyznowej
Więcej informacji na ten temat: Uzupełnienie rysunków o pętle instalacji płaszczyznowej
Uwzględnienie rysunkowej długości pętli w obliczeniach
Więcej informacji na ten temat: Jak uwzględnić rysunkową długość pętli w obliczeniach
Użycie płyt w suchych systemach ogrzewania podłogowego
Więcej informacji na ten temat: Wstawianie płyt w suchych systemach ogrzewania podłogowego
Ponowne wykonanie obliczeń i weryfikacja wyników
- Zweryfikować wyniki obliczeń ze szczególnym uwzględnieniem:
- stopnia pokrycia zapotrzebowania na ciepło pomieszczeń,

16. Pokrycie wymaganej mocy ogrzewania - dobranych warstw Podłoga grzewczo-chłodząca, w tym, czy nie występują niepożądane różnice w wysokości/grubościach zabudowy sąsiadujących ze sobą.

17. Konstr. podłogi ... - zestawienia materiałów.
18. Zestawienie materiałów - ogrzewanie / chłodzenie - Zestawienie elementów systemów płaszczyznowych
- stopnia pokrycia zapotrzebowania na ciepło pomieszczeń,
Przygotowanie rysunku do wydruku/eksportu
Etykieta
- Wstawić etykiety dla wymaganych elementów.
- Skonfigurować wygląd etykiet (opc).
Więcej informacji na ten temat: Pkt 5. Konfiguracja wyglądu elementów i parametry edycji
19. Wstawienie elementu Etykieta
Tabelka rozdzielacza
- Wstawić element Tabelka rozdzielacza.
Więcej informacji na ten temat: Etykieta i Tabelka rozdzielacza
Rysunek przekroju konstrukcji
- Wstawić Rysunek przekroju konstrukcji. Przeskalować i skonfigurować, jeśli potrzeba.

20. Rysunek przekroju konstrukcji
Wężownica OChP
- Wygenerować automatycznie rysunki Wężownica OChP.
Więcej informacji na ten temat: Automatyczne generowanie rysunków pętli - Zweryfikować automatycznie wygenerowane rysunki Wężownica OChP i w razie potrzeby skorygować ich przebieg ręcznie.
Więcej informacji na ten temat: Ręczna edycja rysunków pętli
Ramka rysunkowa
- Wstawić element Ramka rysunkowa.
- W Tabela danych wybrać Ramka rysunkowa.

21. Wstawienie elementu Ramka rysunkowa
Tabelka projektu
Wydruk/eksport wyników
- Wykonać wydruk/eksport rysunków.
- Wykonać wydruk/eksport tabel.
Więcej informacji na ten temat: Eksport / wydruk wyników i rysunków

