Wprowadzenie do pracy z pakietem InstalSystem 5
| Produkt | InstalSystem 5 | 
| Typ artykułu | ZASTOSOWANIE PROJEKTOWE | 
| Ostatnia aktualizacja | GOLD Rev. 16.1 | 
Zakres lekcji
Artykuł przedstawia ogólne informacje na temat środowiska pracy oferowanego przez pakiet InstalSystem 5 i opisuje podstawowe kroki projektowania z jego wykorzystaniem.
Pakiet składa się z Zarządcy (managera) i Edytora. Manager jest zawsze uruchamiany tylko raz, natomiast Edytorów można mieć otwartych kilka. Dlatego zapis pliku jest, w odróżnieniu od odczytu, możliwy tylko z Edytora. Wszystkie zastosowania programu są obsługiwane przez jeden i ten sam Edytor (w odróżnieniu od v4).
Potrzebne moduły i konfiguracja programów
- Pakiet InstalSystem 5 w konfiguracji odpowiadającej wykonywanemu projektowi.
- Połączenie z Internetem
Kroki do wykonania
Pierwsze kroki i informacje o pakiecie
Uzyskanie dostępu do aplikacji
Na wstępie konieczne jest uzyskanie dostępu do pliku instalacyjnego programu, który należy pobrać z naszej strony internetowej: Pliki instalacyjne.
Instalacja, aktywacja, aktualizacja
Po otrzymaniu dostępu do pliku instalacyjnego, należy zapisać go na dysku lokalnym, a następnie przeprowadzić instalację za pomocą przycisku "Instaluj".

Pakiet wymaga instalacji na komputerze użytkownika oraz aktywacji. Do aktywacji licencji standardowych niezbędne jest posiadanie numeru licencji. Aktywacja wersji demonstacyjnej jest wykonywana bez numeru licencji. Aktualnie dostępne wersje demonstracyjne pakietu InstalSystem 5 są dostępne na naszej stronie internetowej: Wersje demonstracyjne.

Przed wykonaniem instalacji należy sprawdzić, czy komputer spełnia wymagania systemowo-sprzętowe określone w: Specyfikacja techniczna pakietu InstalSystem 5.
Więcej informacji na ten temat: Instalacja, aktywacja i aktualizacja pakietu InstalSystem 5.
Otwarcie pliku projektu i zarządzanie projektami
Założenie nowego projektu lub otwarcie istniejącego
Uruchomić aplkację, w tym celu należy rozwinąć Menu start, znaleźć odpowiedni pakiet InstalSystem 5 i uruchomić InstalSystem 5 Manager.
- Nowy projekt - w trakcie otwierania nowego pliku wskazać szablon do wykorzystania w danym projekcie oraz wybrać jedną z pobranych podwersji programu, z użyciem której chce się pracować z plikiem. Zaleca się pracę na najnowszej dostępnej podwersji programu.
- Otwórz projekt - w trakcie otwierania istniejącego pliku projektu można wybrać podwersję programu, z użyciem której chce się dalej przetwarzać plik. Pozwala to na kontynuację pracy z projektem dokładnie na tej wersji, na której był on wcześniej utworzony.
 Pakiet InstalSystem 5 umożliwia także odczyt plików utworzonych w pakiecie InstalSystem 4.
 Więcej informacji na ten temat: Projektowanie na bazie pliku projektu z InstalSystem 4 3. Nowy plik 
Zarządzanie plikami projektów
Szczegóły można znaleźć w Zarządzanie projektami i aplikacją
Praca z projektem
Dane ogólne
Pierwszym etapem pracy z projektem jest odpowiednie ustawienie Danych ogólnych. 
Więcej informacji na ten temat: Dane ogólne.
Podstawowe elementy środowiska edycji graficznej
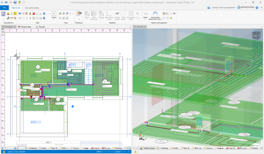
Podstawowe miejsca edycji danych projektu to okna Edytor 2D oraz Tabela danych. Sposób ich otwarcia lub zmiany ich lokalizacji w ramach ekranu został opisany w: Układ okien. Najważniejsze funkcje są natomiast dostępne poprzez pasek Narzędzia główne oraz poprzez menu podręczne widoczne po naciśnięciu prawego klawisza myszy. Menu podręczne ma charakter kontekstowy - jego dostępność i zawartość zależą od wskazanego miejsca ekranu lub obiektu.

Więcej informacji na ten temat:Podstawowe elementy środowiska edycji graficznej
Konfigurowanie aplikacji
Pakiet InstalSystem 5 może być skonfigurowany na różnych poziomach, dzięki czemu istnieje możliwość dostosowania aplikacji do wymagań użytkownika. Więcej informacji na ten temat: Konfigurowanie aplikacji.
Przygotowanie konstrukcji budynku
Konstrukcja budynku stanowi podstawę, na bazie której można tworzyć projekt instalacji. Budynek może się składać z wielu kondygnacji. Dla każdej kondygnacji program automatycznie zakłada odrębny arkusz  rzutu, na którym mogą być edytowane elementy konstrukcji budynku należące do tej kondygnacji oraz znajdujące się na tej kondygnacji elementy projektowanych instalacji. Edycja poszczególnych zakresów odbywa się na osobnych zakładkach (warstwach), natomiast całość budynku i wszystkich zaprojektowanych w nim instalacji stanowi jeden spójny i zintegrowany projekt. 
Istnieje kilka  sposobów przygotowania konstrukcji budynku na potrzeby projektu. Wybór konkretnej z nich będzie zależał od tego, jakie dane źródłowe w zakresie konstrukcji i rzutów poszczególnych kondygnacji są dostępne w danym przypadku oraz od tego jaki zakres projektu ma być opracowany i tak też rozróżniamy konstrukcję jako:
- "Układ pomieszczeń" dla przypadku, gdy obrysowywane są same pomieszczenia.
- "Pełną strukturę budynku" lub "Strukturę budynku" dla budynku utworzonego ze ścian, stropów itp.
Więcej informacji na ten temat: Przygotowanie struktury budynku
Więcej informacji na ten temat: Import plików podkładów
Weryfikacja poprawności struktury budynku
Więcej informacji na ten temat: Weryfikacja poprawności struktury budynku
Więcej informacji na ten temat: Nawigacja widoku w edytorze graficznym
Edycja instalacji
Podstawowym sposobem wprowadzania danych projektowanego systemu w pakiecie InstalSystem 5 jest edycja graficzna. Projektowanie polega na wstawianiu obiektów - elementów instalacji - na rysunek i odpowiednim ich łączeniu ze sobą. Praca odbywa się na rysunkach rzutów kondygnacji budynku. Tak utworzoną instalację można dowolnie modyfikować, kopiować jej fragmenty i wykonywać na niej inne operacje.
- Pakiet oferuje wiele funkcji wspierających edycję graficzną, które pozwalają na zredukowanie zakresu i czasu ręcznej pracy na tym etapie. Niektóre elementy można wstawiać automatycznie lub są one generowane przez program. Możliwe jest też grupowe wstawianie i edytowanie elementów.
- Aplikacja jest wyposażona w gotowe, predefiniowane obiekty graficzne, które można wykorzystać w projekcie. Przykłady to: Tabelka rozdzielacza, Etykiety elementów, Tabelka projektu. Więcej informacji na ten temat:Konfigurowanie aplikacji - Tabela projektu.
- Szczególnie łatwe i bezproblemowe są wszelkiego rodzaju modyfikacje projektu - ich wysoka ergonomia i łatwość wykonania obliczeń zmodyfikowanego projektu to jedna z największych zalet środowiska pracy w InstalSystem 5.
- Program automatycznie wyznacza rzędne poziomych odcinków działek na podstawie rzędnych elementów które działki łączą. Dodatkowo użytkownik może korygoowac pionowy przebieg działki poprzez zmianę jej właściwości w tabeli danych. Wyznaczanie odbywa się podczas sprawdzania połączeń, które jest zawsze pierwszą faza obliczeń, można je też wywołać ręcznie.
Przykłady edycji zaprezentowano na filmach poniżej.
Szczegółowe informacje na temat Edycji instalacji, w kontekście rodzaju projektowanej instalacji lub prowadzonych obliczeń, znajdują się w opisach zastosowań programu - patrz: ZASTOSOWANIA PROJEKTOWE.
Weryfikacja poprawności struktury instalacji
Przed szczegółowym uzupełnieniem danych elementów korzystne jest sprawdzenie poprawności struktury instalacji i połączeń elementów. Ewentualne korekty struktury mogą prowadzić do zmian lub nawet usunięcia niektórych elementów i wtedy czas poświęcony na uzupełnienie ich danych byłby stracony. Pakiet oferuje w tym zakresie następujące narzędzia:
- Narzędziem pozwalającym na sprawdzenie poprawności połączeń elementów instalacji w projekcie jest funkcja Sprawdź połączenia, dostępna też pod skrótem klawiszowym Shift+F2. 5. Funkcja Sprawdź połączenia 
- Narzędziem pozwalającym na wizualną weryfikację poprawności struktury instalacji jest, podobnie jak na opisanym powyżej etapie weryfikacji konstrukcji budynku, Widok 3D projektu. Widok 3D może być włączony cały czas, co pozwala na bieżącą weryfikację poprawności instalacji podczas jej edycji. W takim wypadku szczególnie korzystna jest praca z użyciem dwóch monitorów. Należy jednak pamiętać, że widok 3D spowalnia pracę programu, dlatego w przypadku pracy na niezbyt szybkim komputerze lub pracy z dużym projektem, korzystniejsze będzie włączanie widoku 3D tylko w czasie wykonywania weryfikacji stanu projektu, a prowadzenie bieżącej pracy bez włączania okna widoku 3D. 6. Struktura instalacji 
Edycja danych elementów
Każdy element w projekcie posiada swój zestaw danych, których edycja jest możliwa po zaznaczeniu tego elementu, przy pomocy Tabela danych można ją włączyć/wyłączyć poprzez jej wybór z menu Okna dostępnego na wstążce lub za pomocą klawisza F12.

- Istotna część danych nowych elementów wstawianych na rysunek jest uzupełniona automatycznie. W bardzo dużym stopniu ułatwia to pracę z projektem. Zakres automatycznie proponowanych danych może być różny i zależy od rodzaju elementu i dodatkowych czynników.
- Podstawowym mechanizmem w tym zakresie jest propagowanie Danych ogólnych
- Niektóre dane są odczytywane na podstawie lokalizacji i wielkości / kształtu wstawionego na rysunek elementu
- W przypadku elementów, które są powiązane z danymi z katalogów i mają wybrany typ katalogowy, wiele szczegółowych danych jest odczytywanych z katalogu.
 
- Dowolną daną domyślną można w każdej chwili nadpisać inną wartością. Informacja, czy aktualny stan danej pochodzi z okna Dane ogólne lub jest innym rodzajem danej domyślnej, czy też jest to wartość narzucona przez użytkownika, ma postać ikony umieszczonej po prawej stronie wybranego pola w oknie Tabela danych. Kliknięcie na ten symbol zmienia status danej, w szczególności pozwala powrócić do statusu Domyślnie.
- Komputerek oznacza domyślną wartość danej Plik:Computer-pl.png
- Ołówek oznacza, że aktualna wartość jest narzucona przez użytkownika Plik:Pencil-pl.png
 
- Dane każdego elementu można wprowadzić lub modyfikować w dowolnym momencie pracy z projektem.
- Możliwe jest edytowanie danych elementów zaraz po ich wstawieniu do projektu i dla niektórych elementów jest to rekomendowane rozwiązanie. Szczególnie dotyczy to elementów, które są niezależne od innych elementów rysunku oraz występują w projekcie w niewielkiej ilości.
- Dla elementów, które występują w projekcie w dużej ilości, korzystne jest wydzielenie etapu edycji ich danych, aby skorzystać z możliwości grupowej edycji danych. W celu grupowego zaznaczenia wielu elementów należy nacisnąć i przytrzymać klawisz Ctrl, a następnie kliknąć każdy z elementów, lub skorzystać z narzędzi do grupowego zaznaczania elementów. Więcej informacji na ten temat: Zaznaczanie i edycja wielu elementów jednocześnie
 
Obliczenia i diagnostyka
W ramach obliczeń wykonywane są wszystkie operacje, niezbędne do uzyskania kompletnych wyników: kontrola połączeń, diagnostyka danych, spójność modelu instalacji, propagacje danych, dobory elementów, obliczenia inżynierskie oraz automatyczne edycje graficzne. Brane są pod uwagę wszystkie dane mające wpływ na wybrany zakres projektu: dane ogólne, dane budynku, rysunki projektowanej instalacji oraz parametry użytych do jej budowy elementów, odczytane z katalogów. Oznacza to, że program automatycznie zapewnia bardzo wysoką kompletność i spójność danych i wyników. Takie podejście znacząco ułatwia nawroty do dowolnego z wcześniejszych etapów edycji - po zmianie wybranych danych można wykonać ponowne obliczenia i uzyskać kompletne i aktualne wyniki. Łatwość nawrotów daje wysoki komfort i szybkość pracy w kontekście przeliczania różnych wariantów projektu, uwzględniania zmieniających się wymagań inwestora lub zmian w konstrukcji budynku wprowadzanych już w trakcie projektowania instalacji.
Uruchamianie obliczeń - w sekcji Obliczenia paska Narzędzia główne są dostępne narzędzia pozwalające na uruchamianie i sterowanie zakresem obliczeń. Obliczenia można wykonać dla wszystkich włączonych dla projektu zakresów, w pokazanej na rysunku kolejności (od góry do dołu), lub dla wybranych zakresów. Moduły obliczeń zostały zaznaczone czerwoną ramką. 

Na pasku narzędzi w sekcji obliczenia, oprócz obliczeń poszczególnych modułów dostępne są ikony:
- Generuj stropy i ściany z pomieszczeń i obrysu budynku.Więcej informacji na ten temat: Ręczna edycja pomieszczeń i automatyczne rozpoznanie ścian i stropów na tle podkładu
- Sprawdź połączenia. Więcej informacji na ten temat: Weryfikacja poprawności struktury instalacji
- Interaktywne obliczenia systemów płaszczyznowych.Więcej informacji na ten temat: Interaktywne obliczenia systemów płaszczyznowych
Diagnostyka i lista błędów - Przegląd i obsługa komunikatów diagnostyki
Wyniki - Prezentacja wyników obliczeń
Przygotowanie rysunków do eksportu/wydruku
Więcej informacji na ten temat: Przygotowanie rysunków do eksportu/wydruku
Eksport / Wydruk wyników i rysunków
Wyniki tabelaryczne oraz rysunki można łatwo drukować lub eksportować w jednym z wielu oferowanych przez program formatów. W celu uzyskania wydruku rysunków z wynikami lub tabel wyników, a także ich eksportu, należy włączyć widoczność odpowiednich okien programu: "Edytor 2D", Widok 3D", "Wydruki" i dalsze operacje wykonać w tych oknach.
 
Wydruk tabel i zestawień - możliwe jest stworzenie i zapisanie własnych kompozycji wydruków i wykonanie wydruku wyników obliczeń bezpośrednio na urządzeniu drukującym lub eksportu do wybranego formatu. 
 
Wydruki graficzne - możliwe jest określenie układu stron wydruku graficznego i wykonanie wydruku rysunków z projektu bezpośrednio na urządzeniu drukującym lub eksportu do wybranego formatu.
Więcej informacji na ten temat: Eksport / wydruk wyników i rysunków.