Instalacja płaszczyznowo-grzejnikowa w budynku jednorodzinnym podpiwniczonym

Z HelpSystem
Przejdź do nawigacji Przejdź do wyszukiwania
Produkt [[{{{commercial_product1}}}]]
[[{{{commercial_product2}}}]]
[[{{{commercial_product3}}}]]
[[{{{commercial_product4}}}]]
Typ artykułu [[{{{category1}}}|{{{category_name1}}}]]
[[{{{category2}}}|{{{category_name2}}}]]
[[{{{category3}}}|{{{category_name3}}}]]
Ostatnia aktualizacja {{{version1}}}
{{{version2}}}
{{{version3}}}
{{{version4}}}


PRZYKŁADOWY PROJEKT W INSTALSYSTEM
Pliki projektu

Jak przeliczyć pobrany plik?

Stan końcowy, ISB
Opracowano na InstalSystem 4.13 Rev. 16-10
Niezbędne moduły Instal-therm R Instal-therm H
Zakres projektu Ogrzewanie grzejnikowe, Ogrzewanie płaszczyznowe
Użyte katalogi Neutral bathroom radiators
Neutral steel panel radiators
Neutral steel panel radiators VK
PEX/AL/PEX System (pipes and fittings)
Neutral valves cataloge - typical construction
VK - collective catalogue
Basic underfloor heating systems
Standard insulation catalogue
Rodzaj budynku Jednorodzinny, podpiwniczony,
3 kondygnacyjny
Konstrukcja budynku Podkład Piwnica, DWG
Podkład Parter, DWG
Podkład Piętro, DWG
Zakres rysunków Rzut, Rozwinięcie
Opracowany przez
www.instalsoft.com
Zastrzeżenia prawne Możliwość kopiowania całości lub fragmentów projektu
Wyniki obliczeń Wyniki obliczeń, Excel
Wydruki wyników obliczeń, Adobe
Rysunki wynikowe Rzut Piwnica, DWG
Rzut Parter, DWG
Rzut Piętro, DWG
Rozwinięcie, DWG
Rzut Piwnica, jpg
Rzut Parter, jpg
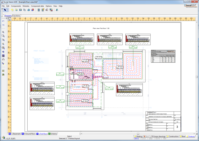
Rzut Piętro, jpg

Opis projektu

Przykład przedstawia instalację grzewczą zaprojektowaną dla źródła o parametrach 60/40 stopni C. Pomieszczenia przeznaczone do najczęstszego przebywania ludzi są wyposażone w ogrzewanie podłogowe, natomiast łazienki, garaż oraz pomieszczenia piwniczne są ogrzewane za pomocą grzejników. Źródło zlokalizowane zostało w piwnicy, skąd medium dostarczane jest do odbiorników za pomocą dwóch oddzielnych pionów. Jeden z pionów zasila grzejniki na wszystkich kondygnacjach, natomiast drugi zasila rozdzielacze ogrzewania podłogowego. Przed pionem doprowadzającym medium do rozdzielaczy o.p. zlokalizowany jest mieszacz, który pozwala na utrzymanie temperatury na poziomie odpowiednim dla ogrzewania płaszczyznowego.